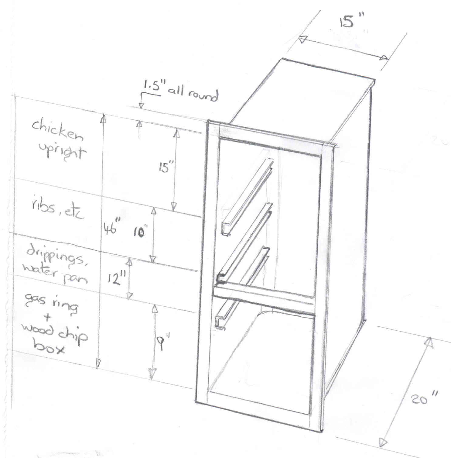
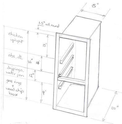
On another thread a member mentioned that chicken takes on smoke quickly. As I'm in the process of getting my vertical/filecabinet smoker made I'd like some opinions on where to stack my foods. I was planning on cooking different foods together, I've done a drawing which I thought would work, it'll give you an idea on what I plan to do. This is the inner for the filecabinet.
Should the chicken be closer to the heat source as the smoke will be mostly at the top?, what about sausages? where would you stack them?
vertical smoker/food configuration
Re: vertical smoker/food configuration
good point Al
-
LM600
Re: vertical smoker/food configuration
Yep, Chicken on the lower rack...if for nothing else than all that lovely, goodness that is whatever is cooking above will baste the chicken below!
